top of page

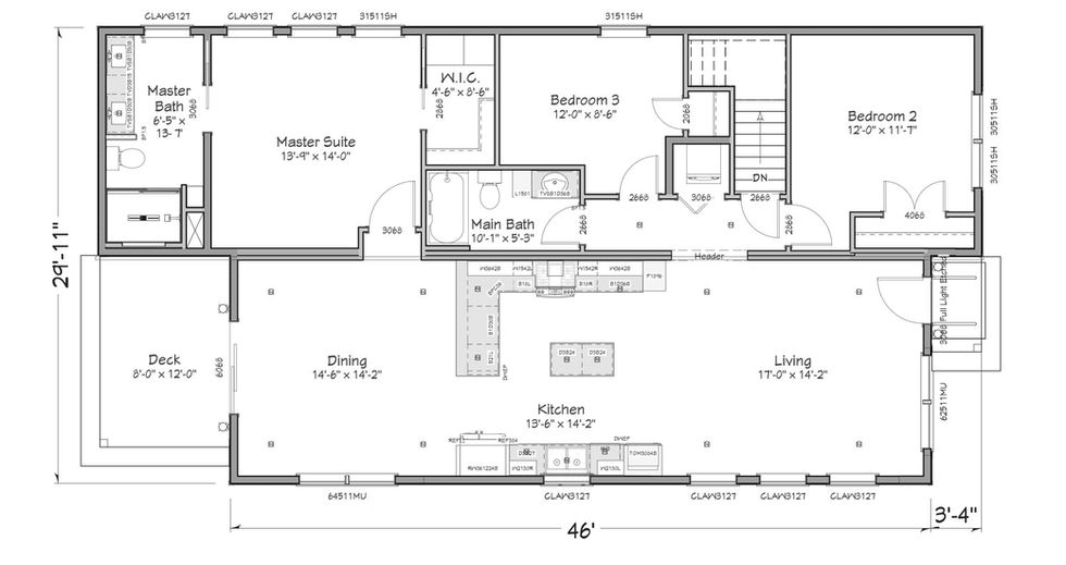
The Julia
Award-Winning Layout, Designed for Entertaining
The Julia
Award-Winning Layout, Designed for Entertaining
The Julia is a modern 1560 sq ft. ranch with a sawtooth roof pitch adding angled ceilings in the Living Room, Kitchen and Dining Room creating volume style. An open floorplan with kitchen adjacent to the dining and living areas creates an ideal space for hosting. Rounding out this plan are nicely sized bedrooms with plenty of closet space and a large master bedroom with private bath.
bottom of page
















